menu.svg
Повернутись

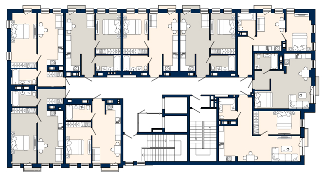
Будинок №10

3 поверх

Однокімнатна Квартира № 343

Кількість кімнат 1

Загальна площа 38,65

Однокімнатна Квартира № 344

Кількість кімнат 1

Загальна площа 43,95

Однокімнатна Квартира № 345

Кількість кімнат 1

Загальна площа 43,34

Однокімнатна Квартира № 346

Кількість кімнат 1

Загальна площа 38,08

Однокімнатна Квартира № 347

Кількість кімнат 1

Загальна площа 38,08

Однокімнатна Квартира № 348

Кількість кімнат 1

Загальна площа 38,08

Однокімнатна Квартира № 349

Кількість кімнат 1

Загальна площа 35,90

Однокімнатна Квартира № 350

Кількість кімнат 1

Загальна площа 35,60

Двокімнатна Квартира № 351

Кількість кімнат 2

Загальна площа 52,37

завантажити PDF

Залишились запитання? У нас є відповіді

Повернутись
Квартири
logo Viking park