menu.svg
Повернутись

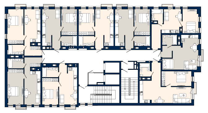
Будинок №10

4 поверх

Однокімнатна Квартира № 352

Кількість кімнат 1

Загальна площа 38,65

Однокімнатна Квартира № 353

Кількість кімнат 1

Загальна площа 43,95

Однокімнатна Квартира № 354

Кількість кімнат 1

Загальна площа 43,34

Однокімнатна Квартира № 355

Кількість кімнат 1

Загальна площа 38,08

Однокімнатна Квартира № 356

Кількість кімнат 1

Загальна площа 38,08

Однокімнатна Квартира № 357

Кількість кімнат 1

Загальна площа 38,08

Однокімнатна Квартира № 358

Кількість кімнат 1

Загальна площа 35,90

Однокімнатна Квартира № 359

Кількість кімнат 1

Загальна площа 35,60

Двокімнатна Квартира № 360

Кількість кімнат 2

Загальна площа 52,37

завантажити PDF

Залишились запитання? У нас є відповіді

Повернутись
Квартири
logo Viking park