menu.svg
Повернутись

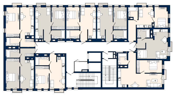
Будинок №10

5 поверх

Однокімнатна Квартира № 361

Кількість кімнат 1

Загальна площа 38,65

Однокімнатна Квартира № 362

Кількість кімнат 1

Загальна площа 43,95

Однокімнатна Квартира № 363

Кількість кімнат 1

Загальна площа 43,34

Однокімнатна Квартира № 364

Кількість кімнат 1

Загальна площа 38,08

Однокімнатна Квартира № 365

Кількість кімнат 1

Загальна площа 38,08

Однокімнатна Квартира № 366

Кількість кімнат 1

Загальна площа 38,08

Однокімнатна Квартира № 367

Кількість кімнат 1

Загальна площа 35,90

Однокімнатна Квартира № 368

Кількість кімнат 1

Загальна площа 35,60

Двокімнатна Квартира № 369

Кількість кімнат 2

Загальна площа 52,37

завантажити PDF

Залишились запитання? У нас є відповіді

Повернутись
Квартири
logo Viking park